Modular Design
MAN CAMP CUBE
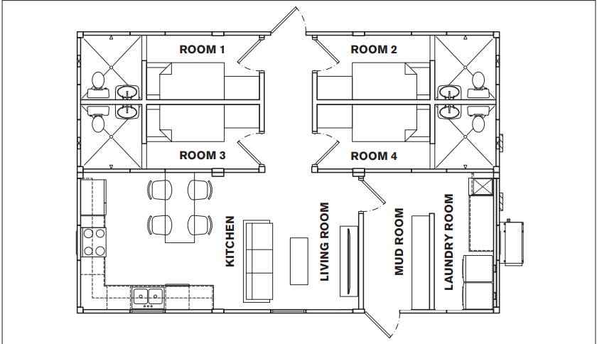
4Bedrooms
4Bathrooms
864Sq Ft
24'x36' modular 4-bedroom unit with full kitchen, living room, and laundry. Welded structural steel frame. Fully transportable, ready to use on delivery.
Photo Gallery
See inside the Man Camp Cube. Real photos, no renderings

Exterior

Interior

Interior
Every Unit Includes
Modular design with shared common spaces
4 Bedrooms
With attached baths
Full Kitchen
Complete appliances
Living Room
Shared common area
Full Laundry
Washer/dryer ready
Steel Frame
Welded structural tube
10' Height
Standard ceiling
Transportable
Fully relocatable
Premium Finishes
Durable components
Quick Install
Ready on delivery
Pre-Configured
Utility connections
Engineered
Snow/wind/seismic
Modular Panels
Customizable walls
Specifications
| Model Name | Man Camp Cube |
| Configuration | 4 Bedroom / 4 Bathroom (attached) |
| Dimensions | 24' x 36' |
| Height | 10' standard |
| Construction | Welded structural steel tube frame |
| Walls | Modular panels (customizable) |
| Kitchen | Full kitchen with appliances |
| Living Area | Living room + full laundry |
| Utilities | Preconfigured connections |
| Engineered For | Snow load, wind load, seismic |
| Finishes | Premium components inside and out |
| Installation | Quick setup, ready to use immediately |
| Mobility | Fully transportable |
More Models Available
We offer different trailer styles and layouts to fit your workforce needs. Contact us to discuss custom configurations and other available models.
Ready to See the Man Camp Cube in Person?
Schedule a tour to walk through our units. See the quality for yourself before committing.
